
Oplevering eind dit jaar! Meteen intrekken in een energiezuinige, toekomstklare woning - plan vandaag nog uw bezoek!
Op zoek naar een bijna energie neutraal (BEN)-appartement aan het Station, de fietsostrade en op wandelafstand van het centrum van Beveren? Dan vindt u bij woonproject “Het Perron” wellicht een geschikt appartement!
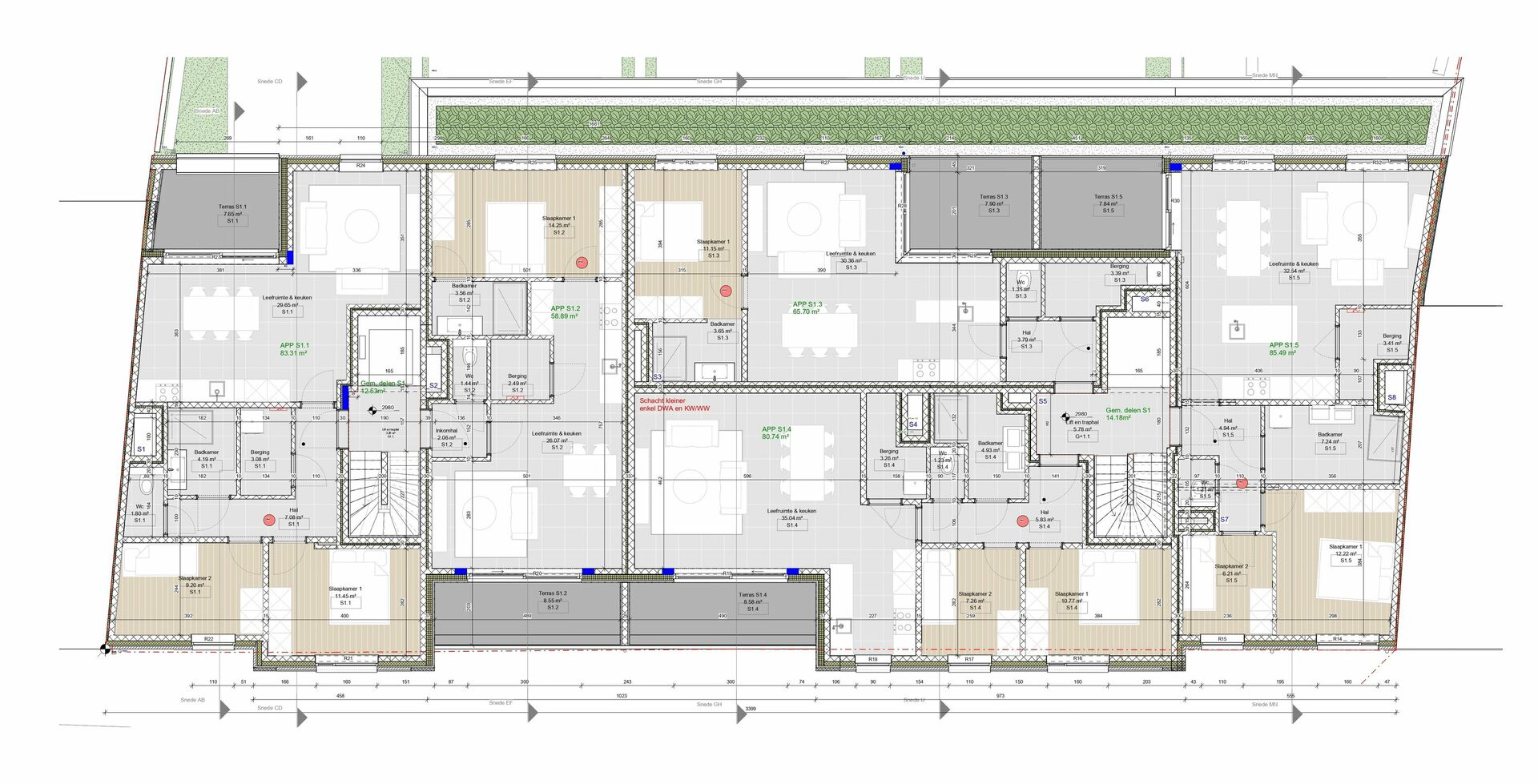
Dit BEN-project bestaat uit 34 appartementen waarvan 19 appartementen aan de Stationsstraat en 15 appartementen aan de Kleine Bosweg met een groen tussengebied toegankelijk voor iedere bewoner.
Elk BEN-appartement heeft een E-peil van max. E20 waardoor u geniet van financiële voordelen zoals verlaagde energiekosten alsook 50% korting op de onroerende voorheffing gedurende 5 jaar.
Er is een ruime keuze tussen 1, 2 of 3 slaapkamers met oppervlaktes tussen 59 m² en 109 m². Ook is er voldoende zonnige terrasruimte voorzien met terrassen tot wel 29 m².
Daarnaast is er een volledige ondergrondse parking (toegankelijk van uit ieder appartement) voorzien van autostaanplaatsen, kelderbergingen en fietsenstallingen.
Verder geniet dit project de 6%* BTW regeling. (*onder voorbehoud dat U als koper ook voldoet aan de voorwaarden voor de 6% BTW maatregel (o.a. eigen bewoning, verhuren voor minstens 15 jaar, ...))
Benieuwd naar één van deze BEN-appartementen op een TOP-ligging? Contacteer ons dan snel voor meer informatie en/of een gesprek bij ons op kantoor via verkoop@homevast.be of tel. 03 344 77 44.
Op zoek naar een bijna energie neutraal (BEN)-appartement aan het Station, de fietsostrade en op wandelafstand van het centrum van Beveren? Dan vindt u bij woonproject “Het Perron” wellicht een geschikt appartement!
Dit BEN-project bestaat uit 34 appartementen waarvan 19 appartementen aan de Stationsstraat en 15 appartementen aan de Kleine Bosweg met een groen tussengebied toegankelijk voor iedere bewoner.
Elk BEN-appartement heeft een E-peil van max. E20 waardoor u geniet van financiële voordelen zoals verlaagde energiekosten alsook 50% korting op de onroerende voorheffing gedurende 5 jaar.
Er is een ruime keuze tussen 1, 2 of 3 slaapkamers met oppervlaktes tussen 59 m² en 109 m². Ook is er voldoende zonnige terrasruimte voorzien met terrassen tot wel 29 m².
Daarnaast is er een volledige ondergrondse parking (toegankelijk van uit ieder appartement) voorzien van autostaanplaatsen, kelderbergingen en fietsenstallingen.
Verder geniet dit project de 6%* BTW regeling. (*onder voorbehoud dat U als koper ook voldoet aan de voorwaarden voor de 6% BTW maatregel (o.a. eigen bewoning, verhuren voor minstens 15 jaar, ...))
Benieuwd naar één van deze BEN-appartementen op een TOP-ligging? Contacteer ons dan snel voor meer informatie en/of een gesprek bij ons op kantoor via verkoop@homevast.be of tel. 03 344 77 44.
Interesse in dit project?

Beschikbare units
Gebouw kant Kleinebosweg |
||||||
---|---|---|---|---|---|---|
gelijkvloers | ||||||
gelijkvloers | Slpk. | Bew. opp. | Terras opp. | Grond. opp. | Prijs | |
Appartement - K1334_D_K01 Details | Kamers 3 | Bew. opp 109,11 m² | Terras 23,50 m² | Perceel – | Prijs € 394.500 | |
Appartement - K1334_D_K02 Details | Kamers 2 | Bew. opp 105,74 m² | Terras 13,60 m² | Perceel – | Prijs € 379.500 | |
Appartement - K1334_D_K03 Details | Kamers 2 | Bew. opp 105,25 m² | Terras 13,60 m² | Perceel – | Prijs € 379.500 | |
Appartement - K1334_D_K04 | Kamers 1 | Bew. opp 87,75 m² | Terras 12,90 m² | Perceel – | Prijs Proficiat | |
eerste verdieping | ||||||
eerste verdieping | Slpk. | Bew. opp. | Terras opp. | Grond. opp. | Prijs | |
Appartement - K1334_D_K11 Details | Kamers 3 | Bew. opp 106,83 m² | Terras 18,30 m² | Perceel – | Prijs in optie | |
Appartement - K1334_D_K12 | Kamers 2 | Bew. opp 80,75 m² | Terras 12,20 m² | Perceel – | Prijs Proficiat | |
Appartement - K1334_D_K13 | Kamers 2 | Bew. opp 80,96 m² | Terras 9,20 m² | Perceel – | Prijs Proficiat | |
Appartement - K1334_D_K14 | Kamers 1 | Bew. opp 73,51 m² | Terras 13,20 m² | Perceel – | Prijs Proficiat | |
tweede verdieping | ||||||
tweede verdieping | Slpk. | Bew. opp. | Terras opp. | Grond. opp. | Prijs | |
Appartement - K1334_D_K21 | Kamers 3 | Bew. opp 106,11 m² | Terras 18,50 m² | Perceel – | Prijs Proficiat | |
Appartement - K1334_D_K22 | Kamers 2 | Bew. opp 80,76 m² | Terras 12,20 m² | Perceel – | Prijs Proficiat | |
Appartement - K1334_D_K23 | Kamers 2 | Bew. opp 80,96 m² | Terras 11,00 m² | Perceel – | Prijs Proficiat | |
Appartement - K1334_D_K24 | Kamers 1 | Bew. opp 74,68 m² | Terras 13,40 m² | Perceel – | Prijs Proficiat | |
derde verdieping | ||||||
derde verdieping | Slpk. | Bew. opp. | Terras opp. | Grond. opp. | Prijs | |
Dakappartement - K1334_D_K31 | Kamers 3 | Bew. opp 106,04 m² | Terras 18,30 m² | Perceel – | Prijs Proficiat | |
Dakappartement - K1334_D_K32 Details | Kamers 2 | Bew. opp 80,75 m² | Terras 12,00 m² | Perceel – | Prijs € 335.000 | |
Dakappartement - K1334_D_K33 | Kamers 3 | Bew. opp 109,12 m² | Terras 29,00 m² | Perceel – | Prijs Proficiat | |
Gebouw kant Stationsstraat |
||||||
gelijkvloers | ||||||
gelijkvloers | Slpk. | Bew. opp. | Terras opp. | Grond. opp. | Prijs | |
Appartement - K1334_D_S01 | Kamers 1 | Bew. opp 69,39 m² | Terras 11,10 m² | Perceel – | Prijs Proficiat | |
Appartement - K1334_D_S02 | Kamers 2 | Bew. opp 85,92 m² | Terras 15,30 m² | Perceel – | Prijs Proficiat | |
Appartement - K1334_D_S03 Details | Kamers 2 | Bew. opp 106,72 m² | Terras 16,50 m² | Perceel – | Prijs € 369.500 | |
Appartement - K1334_D_S04 Details | Kamers 2 | Bew. opp 96,67 m² | Terras 17,70 m² | Perceel – | Prijs € 339.500 | |
Appartement - K1334_D_S05 Details | Kamers 1 | Bew. opp 70,64 m² | Terras 9,30 m² | Perceel – | Prijs € 243.000 | |
eerste verdieping | ||||||
eerste verdieping | Slpk. | Bew. opp. | Terras opp. | Grond. opp. | Prijs | |
Appartement - K1334_D_S11 | Kamers 2 | Bew. opp 83,66 m² | Terras 6,30 m² | Perceel – | Prijs Proficiat | |
Appartement - K1334_D_S12 | Kamers 1 | Bew. opp 59,74 m² | Terras 8,00 m² | Perceel – | Prijs Proficiat | |
Appartement - K1334_D_S13 | Kamers 1 | Bew. opp 67,65 m² | Terras 8,20 m² | Perceel – | Prijs Proficiat | |
Appartement - K1334_D_S14 Details | Kamers 2 | Bew. opp 83,61 m² | Terras 8,00 m² | Perceel – | Prijs € 294.000 | |
Appartement - K1334_D_S15 | Kamers 2 | Bew. opp 83,28 m² | Terras 8,10 m² | Perceel – | Prijs Proficiat | |
tweede verdieping | ||||||
tweede verdieping | Slpk. | Bew. opp. | Terras opp. | Grond. opp. | Prijs | |
Appartement - K1334_D_S21 Details | Kamers 2 | Bew. opp 83,72 m² | Terras 7,60 m² | Perceel – | Prijs € 288.500 | |
Appartement - K1334_D_S22 | Kamers 1 | Bew. opp 59,74 m² | Terras 8,50 m² | Perceel – | Prijs Proficiat | |
Appartement - K1334_D_S23 | Kamers 1 | Bew. opp 67,41 m² | Terras 7,80 m² | Perceel – | Prijs Proficiat | |
Appartement - K1334_D_S24 | Kamers 2 | Bew. opp 83,80 m² | Terras 8,50 m² | Perceel – | Prijs Proficiat | |
Appartement - K1334_D_S25 | Kamers 2 | Bew. opp 83,29 m² | Terras 8,20 m² | Perceel – | Prijs Proficiat | |
derde verdieping | ||||||
derde verdieping | Slpk. | Bew. opp. | Terras opp. | Grond. opp. | Prijs | |
Dakappartement - K1334_D_S31 | Kamers 2 | Bew. opp 83,52 m² | Terras 8,50 m² | Perceel – | Prijs Proficiat | |
Dakappartement - K1334_D_S32 | Kamers 1 | Bew. opp 60,66 m² | Terras 8,50 m² | Perceel – | Prijs Proficiat | |
Dakappartement - K1334_D_S33 Details | Kamers 2 | Bew. opp 106,39 m² | Terras 21,40 m² | Perceel – | Prijs € 385.000 | |
Dakappartement - K1334_D_S34 Details | Kamers 3 | Bew. opp 107,90 m² | Terras 20,40 m² | Perceel – | Prijs € 370.000 |
Interesse in dit project?

Beveren
Beveren ligt in het hart van het Waasland, pal tussen Antwerpen en Sint-Niklaas. Het is het grootste winkeldorp van Vlaanderen, waar er altijd wel iets te beleven valt. Ga een middagje shoppen in het centrum, ontspan op een terrasje aan de Grote Markt of kom op adem in het uitgestrekte kasteelpark van waterburcht Cortewalle. Bovendien draait het verenigingsleven hier op volle toeren. Er zijn tal van vrijetijdsorganisaties, van sportclubs tot culturele gezelschappen. Bent u ook een voetballiefhebber? Beveren is een fervente voetbalgemeente en al decennia lang de thuis van SK Beveren.
